Silver Cottage, Dovaston, Kinnerley, Oswestry, Shropshire

£375,000 Guide Price
Ref DOQ-34290594
For Sale

Property Summary

Discreetly positioned within one of the area’s most highly regarded hamlets, this beautifully crafted new-build home offers the perfect balance of modern efficiency, refined design and effortless living.
3 Bedrooms
2 Bathrooms
1 Receptions

Property Features

  • ** Guide £375.000 - £390,000**
  • Brand-new detached, low-maintenance home
  • Excellent energy efficiency with air source heat pump
  • High-specification finishes throughout
  • Contemporary Shaker-style kitchen with breakfast bar
  • Three well-proportioned bedrooms
  • Enclosed garden with Indian stone patio
  • EV charging point and off-road parking

Full Details

Discreetly positioned within one of the area’s most highly regarded hamlets, this beautifully crafted new-build home offers the perfect balance of modern efficiency, refined design and effortless living. Designed for buyers seeking a true turnkey property, the home delivers low running costs, minimal maintenance and exceptional comfort — all within easy reach of Oswestry and Shrewsbury.



Property Description

This superbly finished, brand-new detached residence has been thoughtfully designed to provide stylish, practical living with long-term efficiency in mind. High-quality materials, clean architectural lines and a carefully considered layout combine to create a home that is ready to move straight into, with nothing to update or maintain.



The heart of the home is a sleek Shaker-style kitchen featuring oak-effect worktops, integrated appliances and a sociable breakfast bar — ideal for everyday living and entertaining alike. The kitchen flows seamlessly into a bright dual-aspect living space where French doors open directly onto the garden, allowing natural light to flood the room. A characterful brick fireplace with wood-burning stove adds warmth and charm while complementing the home’s modern efficiency.



Comfort is assured throughout the year with underfloor heating to the ground floor and both upstairs bathrooms, powered by an air source heat pump for improved energy performance and lower ongoing costs. Upstairs offers three well-proportioned bedrooms, a contemporary family bathroom with bath and walk-in shower, and a light-filled principal suite with en-suite and Velux window.



Externally, the property continues its low-maintenance appeal. A south-facing Indian stone terrace provides an inviting space for outdoor dining and relaxation, while the enclosed lawned garden offers privacy with minimal upkeep. A pebbled driveway delivers secure off-road parking and includes an electric vehicle charging point — ideal for modern lifestyles and future-proof living.



Location

The home occupies a discreet position within the highly regarded hamlet of Dovaston, near Kinnerley — valued for its peaceful setting, strong community feel and attractive surrounding countryside. Despite its tranquil position, the property remains well connected, with Oswestry approximately 6.8 miles away and Shrewsbury around 13 miles distant. Easy access to the A5 provides excellent commuting links towards Telford, the Midlands, Chester, Wrexham and the North West.



Schooling

Kinnerley Church of England Primary School is within walking distance, while secondary education is available at The Corbet School in Baschurch and The Marches School in Oswestry. Independent schooling options include Moreton Hall, Oswestry School and Ellesmere College.



Services

The property is understood to be connected to mains electricity and water, with private drainage and an air source heat pump providing central heating. These services have not been tested.



Tenure

Freehold (purchasers should confirm via their solicitor).



Local Authority

Shropshire Council.



Two of our rooms have been virtually staged



Council Tax - To be assessed

EPC - C





Important Notice

Viewings are strictly by appointment through Daniel James Residential Ltd.



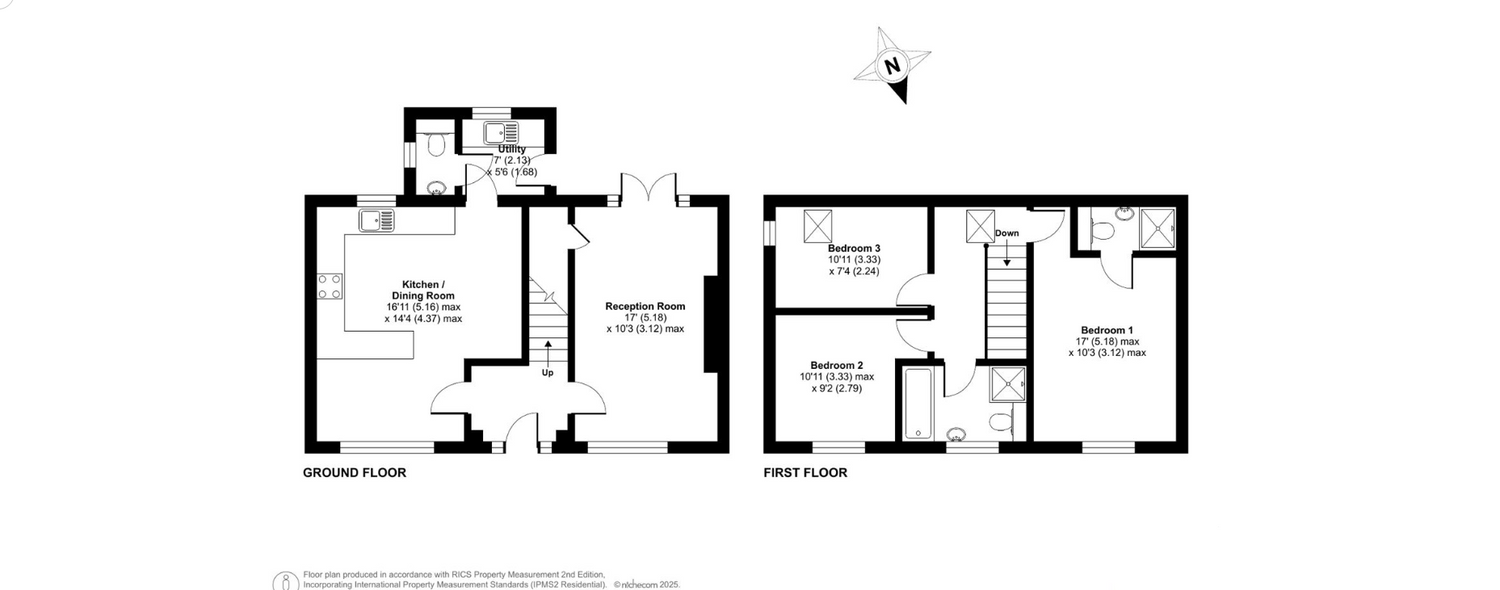
The floor plan has been produced in accordance with the RICS Property Measurement Standards, incorporating the International Property Measurement Standards. No warranty is given regarding the property’s compliance with planning permissions or its current usage. Fixtures and fittings are not included unless specifically stated. While every effort has been made to ensure the accuracy of these details, we recommend contacting us if any aspect is of particular importance to you.



At Daniel James Residential Ltd, we are committed to ensuring a secure and transparent sales process. As part of this commitment, all prospective purchasers will be financially qualified by a reputable independent 5-star mortgage advisor.



Anti-Money Laundering (AML) Checks

We are legally required to carry out anti-money laundering and KYC checks on all property purchasers. While we oversee and ensure these checks are properly conducted, the initial verification process will be carried out by a trusted third-party provider. Once your offer has been accepted, you will receive a verification link via text message to complete the required checks. The fee for these checks is £49 + VAT per buyer/s, which covers all necessary data collection and any required manual verification.



If you prefer not to be contacted by our financial advisor for financial qualification, please inform us at the time of submitting your offer.



Information provided in this listing is in good faith; buyers should verify any items of interest before purchase. We cannot guarantee the working condition of fixtures or systems.

Get your free home buyers/sellers guide

Join our newsletter and receive your free home buyer or sellers guide. Our guides give you lots of tips and tricks to help you with your journey. Just enter your details below to receive your copy now.