Roft Street, Oswestry,

£275,000 Guide Price
Ref DOQ-56406538
For Sale

Property Summary

Charming Period End-Terrace Townhouse | Prime Town-Centre Location
Perfectly positioned just moments from the heart of town, this beautifully presented period end-terrace townhouse blends everyday convenience with timeless character.
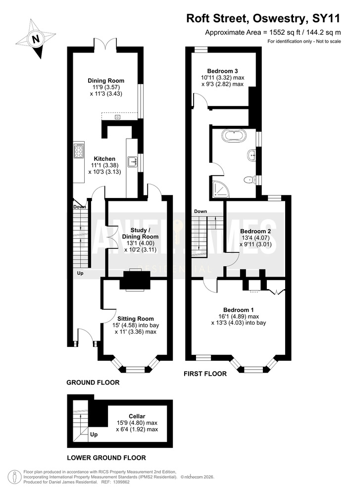
3 Bedrooms
1 Bathrooms
2 Receptions

Property Features

  • Attractive period end-terrace townhouse
  • Walking distance to town amenities, cafés, schools and shops
  • Beautifully presented with retained character features
  • Lounge, additional reception/office and kitchen/breakfast room
  • Three bedrooms and stylish period-inspired bathroom with corner shower
  • Enclosed garden with summer house for low-maintenance outdoor living
  • Excellent access to A5 and M54 commuter routes
  • EPC Rating: C

Full Details

Ideal for buyers seeking walkable town living without compromising on charm or practicality, the property has been thoughtfully modernised while retaining a wealth of original features.



From the moment you step inside, the home’s character is immediately apparent, with high ceilings, original patterned tiled flooring, stripped wooden doors and period fireplaces creating warmth and personality throughout.



The welcoming reception hall leads into a stylish lounge centred around a traditional open fireplace — the perfect focal point for cosy evenings. The kitchen/breakfast room flows seamlessly into the dining room, which features a charming log-burning stove and French doors opening onto the enclosed garden, creating an excellent space for entertaining or relaxed family living. The kitchen is fitted with wooden units and worktops and enjoys excellent natural light.



Upstairs, the first-floor landing leads to three well-proportioned bedrooms, two of which retain attractive period detailing. The beautifully appointed bathroom features a statement roll-top slipper bath with claw feet and a corner shower, complemented by decorative panelling and elegant period styling.



Outside, the fully enclosed garden includes a summer house and has been designed for ease of maintenance, offering privacy and a tranquil space for relaxing or entertaining.



With its superb town-centre location, charming period features, open fires and versatile reception space, this property represents an outstanding opportunity for buyers seeking a character home in a highly convenient setting. Early viewing is strongly recommended.

Viewings are strictly by appointment through Daniel James Residential Ltd.



The floor plan has been produced in accordance with the RICS Property Measurement Standards, incorporating the International Property Measurement Standards. No warranty is given regarding the property’s compliance with planning permissions or its current usage. Fixtures and fittings are not included unless specifically stated. While every effort has been made to ensure the accuracy of these details, we recommend contacting us if any aspect is of particular importance to you.



At Daniel James Residential Ltd, we are committed to ensuring a secure and transparent sales process. As part of this commitment, all prospective purchasers will be financially qualified by a reputable independent 5-star mortgage advisor.



Anti-Money Laundering (AML) Checks

We are legally required to carry out anti-money laundering and KYC checks on all property purchasers. While we oversee and ensure these checks are properly conducted, the initial verification process will be carried out by a trusted third-party provider. Once your offer has been accepted, you will receive a verification link via text message to complete the required checks. The fee for these checks is £49 + VAT per buyer/s, which covers all necessary data collection and any required manual verification.



If you prefer not to be contacted by our financial advisor for financial qualification, please inform us at the time of submitting your offer.



Information provided in this listing is in good faith; buyers should verify any items of interest before purchase. We cannot guarantee the working condition of fixtures or systems.

Get your free home buyers/sellers guide

Join our newsletter and receive your free home buyer or sellers guide. Our guides give you lots of tips and tricks to help you with your journey. Just enter your details below to receive your copy now.